raum_landschaf(f)t
architekten gmbh

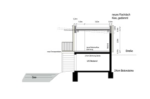
Wasserwachtstation Mandlachsee

Eingabeplanung einer Generalsanierung der Wasserwachtstation am Mandlachsee in Pöttmes

Leistungen

Architektur
Brandschutzplanung